Prodaja / Stan, 54 m2, Prodaja, Primošten
Osnovne informacije
Razna svojstva:
Pogled na more
Instalacije:
Struja
Voda
Opis nekretnine
Primošten – Luksuzni stanovi u centru s pogledom na more CROATIAEXKLUSIV NEKRETNINE predstavlja ekskluzivne stanove u modernoj novogradnji u centru Primoštena.
Projekt se sastoji od 5 luksuznih stanova različitih veličina i rasporeda – od 1,5-sobnih i 2,5-sobnih stanova do ekskluzivnog penthousea. Stanovi se ističu modernim dizajnom, vrhunskom kvalitetom gradnje i izvrsnom lokacijom.
Završetak radova planiran je za svibanj 2027.
S1 – 2,5-sobni prizemni stan s vrtom
	- 	Površina: 66,62 m2
	
	- 	Privatno dvorište i vrt
	
	- 	Parking
	
	- 	Podno grijanje, klima, aluminijska stolarija
	
	- 	Protuprovalna vrata i alarm
	
	- 	Idealno za obitelj ili investiciju
	
S2 – 2,5-sobni prizemni stan s vrtom
	- 	Površina: 66,62 m2
	
	- 	Privatni vrt i dvorište
	
	- 	Parking
	
	- 	Podno grijanje, klima, aluminijska stolarija
	
	- 	Protuprovalna vrata i alarm
	
	- 	Savršen spoj komfora i mediteranskog lifestylea
	
S3 – 1,5-sobni stan s balkonom
	- 	Površina: 52,30 m2
	
	- 	Balkon
	
	- 	Parking
	
	- 	Podno grijanje, klima, aluminijska stolarija
	
	- 	Kompaktni, ali funkcionalni raspored, idealan za parove ili investiciju
	
S4 – 1,5-sobni stan s balkonom
	- 	Površina: 53,21 m2
	
	- 	Balkon
	
	- 	Parking
	
	- 	Podno grijanje, klima, aluminijska stolarija
	
	- 	Sunčan, prozračan i moderan stan s prekrasnim pogledom na more
	
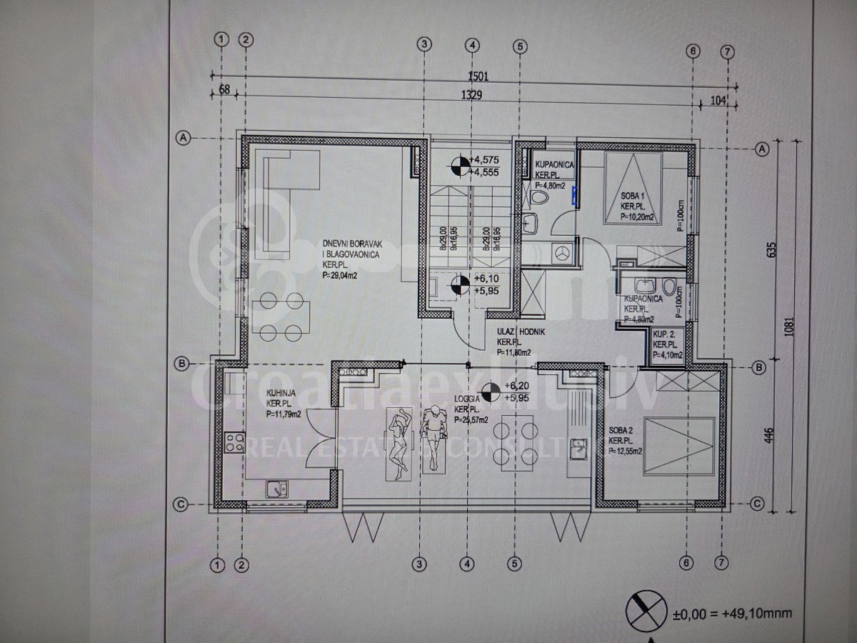
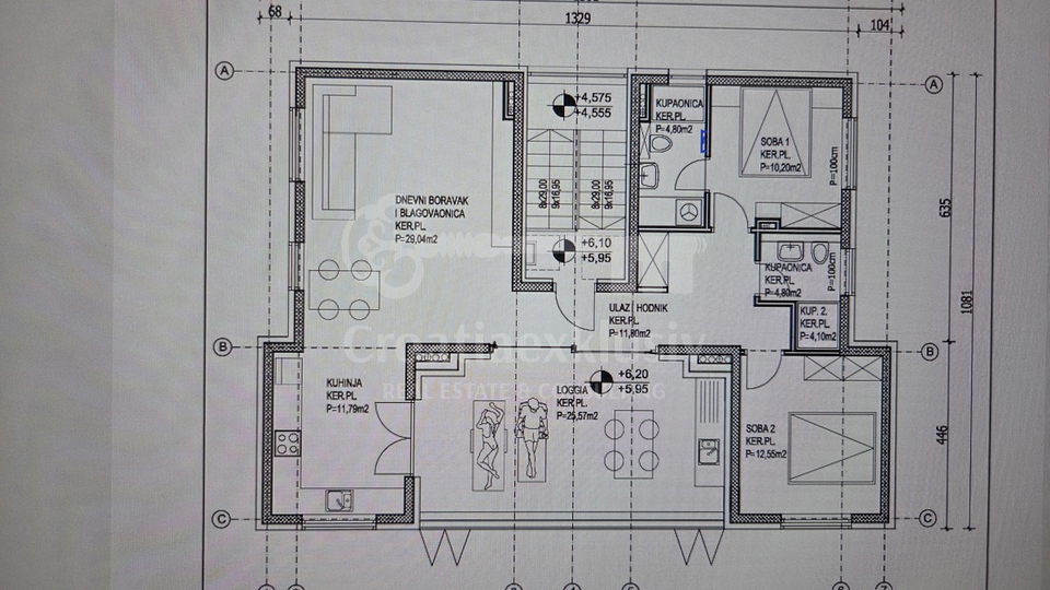
S5 – Ekskluzivni penthouse (2,5-sobni)
	- 	Površina: 107,16 m2 + lođa 25,57 m2
	
	- 	Dvije spavaće sobe
	
	- 	Prostrani dnevni boravak, kuhinja i blagovaonica
	
	- 	Dva parking mjesta
	
	- 	Podno grijanje, klima, aluminijska stolarija
	
	- 	Protuprovalna vrata
	
	- 	Panoramski pogled na more
	
	- 	Savršen spoj luksuza, privatnosti i komfora
	
Prednosti projekta:
	- 	Moderni dizajn i funkcionalan raspored stanova
	
	- 	Sunčana jugozapadna orijentacija i obilje prirodnog svjetla
	
	- 	Blizina svih sadržaja: trgovine, škole, rekreacija, prometne veze
	
	- 	Pogled na more
	
	- 	Sigurnost i komfor – protuprovalna vrata, alarm, parking
	
	- 	Idealno za život ili investiciju
	
S1 299.000,-E
S2 299.000.-E
S3 266.000.-E
S4 271.000,-E
S5 penthaus 557.000,-E




.jpg?class=d7323c4ef2c9b2aff2675c3df1f93ac2)



